Unidad documental simple B-Tp-Is 2 - Plan général des bâtiments.

Original Objeto digital not accessible

Área de identidad

Código de referencia

B-Tp-Is 2

Título

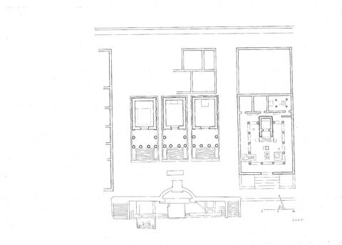
Plan général des bâtiments.

Fecha(s)

  • s.d. (Creación)

Nivel de descripción

Unidad documental simple

Volumen y soporte

Plan/Planta
Mise au net/Dibujo limpio
Format du document/Formato del documento : 1080x760 mm
Trait/Dibujo lineal
Calque/Papel vegetal

Área de contexto

Historia archivística

Origen del ingreso o transferencia

Área de contenido y estructura

Alcance y contenido

Échelle/Escala : 1/100
Autrice/Autora : Myriam Fincker

Valorización, destrucción y programación

Acumulaciones

Sistema de arreglo

Área de condiciones de acceso y uso

Condiciones de acceso

Condiciones

Document sous licence Creative Commons Attribution-NonCommercial-ShareAlike 4.0.

Idioma del material

  • francés

Escritura del material

Notas sobre las lenguas y escrituras

Características físicas y requisitos técnicos

Instrumentos de descripción

Área de materiales relacionados

Existencia y localización de originales

Existencia y localización de copias

Unidades de descripción relacionadas

Descripciones relacionadas

Área de notas

Identificador/es alternativo(os)

Puntos de acceso

Puntos de acceso por materia

Puntos de acceso por lugar

Puntos de acceso por autoridad

Tipo de puntos de acceso

Área de control de la descripción

Identificador de la descripción

Identificador de la institución

Reglas y/o convenciones usadas

Estado de elaboración

Nivel de detalle

Fechas de creación revisión eliminación

Idioma(s)

Escritura(s)

Fuentes

Objeto digital (URI externo), área de permisos

Objeto digital (Referencia), área de permisos

Objeto digital (Miniatura), área de permisos

Área de Ingreso

Materias relacionadas

Tipos relacionados

Lugares relacionados